惠州厂房出租
热门城市: 深圳 |  东莞 |  惠州 |  佛山 |  广州 |  中山 |  河源 | 
24小时咨询热线:13610446757

低价直租仲恺鼎智工业园第5栋研发办公楼(全新精装修)

空调

2806元/月

122㎡
建筑面积
厂房类型

所在区域: 紫金 - 紫金

详细地址: 惠州市---鼎智潼侨工业园

基本信息

厂房类型暂无数据 建筑面积122㎡
起租期仲恺-潼侨 鼎智潼侨工业园 起租面积暂无数据㎡
押付36个月 可办环评押3付1
租赁方式 详细地址惠州市---鼎智潼侨工业园

内部详情

楼层单层 首层楼高3.6m

详细介绍

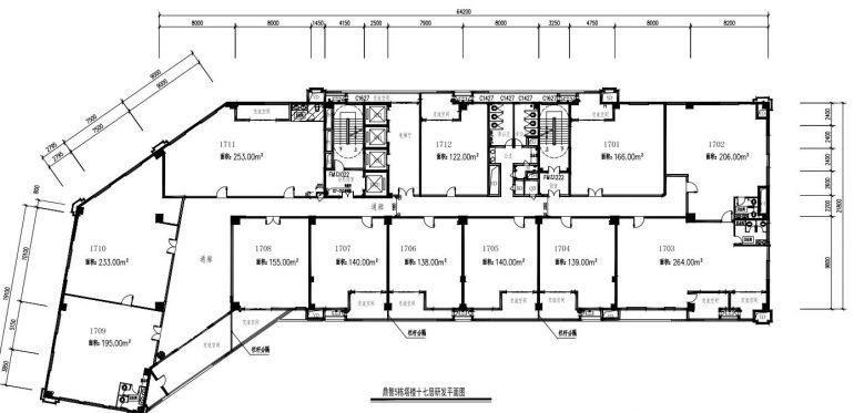
惠州潼侨鼎智科技园第 5 栋,占地 5330 ㎡,建筑面积 61562 ㎡,共 24 层,1-6 层为裙楼厂房,7-24 层为塔楼研发办公,承重350KG/㎡,配备办公电梯 4 台。
项目位于惠州市仲恺高新区城芯地段,南靠深圳,西接东莞,毗邻广州,靠近惠州潼湖生态智慧区、中韩产业园、创新与总部经济区、大数据产业园、人工智能产业园、智能终端装备制造产业园等,周边有创维液晶、TCL、信利集团、华星光电、德赛集团、亿纬锂能等名企环绕。靠近莞惠城轨陈江站、赣深高铁仲恺站,交通便利、配套醇熟、区位优越。
本次第17层出租面积122~264平方米,可自由组合,拎包入驻,全新精装修带空调。租金23元/㎡,免租1个月。欢迎洽谈。

实物图片

低价直租仲恺鼎智工业园第5栋研发办公楼(全新精装修) 低价直租仲恺鼎智工业园第5栋研发办公楼(全新精装修) 低价直租仲恺鼎智工业园第5栋研发办公楼(全新精装修) 低价直租仲恺鼎智工业园第5栋研发办公楼(全新精装修) 低价直租仲恺鼎智工业园第5栋研发办公楼(全新精装修)
推荐厂房