广州
热门城市: 深圳 |  东莞 |  惠州 |  佛山 |  广州 |  中山 |  河源 | 
24小时咨询热线:13610446757

广州荔湾 佛山西站高铁站旁5000㎡ 退台花园厂房出售

5000㎡
建筑面积

所在区域: 荔湾 - 荔湾

详细地址: 荔湾深科创智谷佛山西站高铁站旁

基本信息

结构类型厂房厂房层数5层
厂房面积5000平米厂房价格面议
环评独院燃气蒸汽厂房位置荔湾深科创智谷佛山西站高铁站旁
厂房结构厂房厂房售价面议

详细介绍

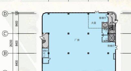
项目位于佛山西站枢纽新城,南临佛山西站,西靠环站东路,东北向沿兴业路,佛山西站枢纽新城依托佛山西站粤港澳大湾区西部客运主枢纽优势,叠加内联外通高速路网,打造“小时”+“零换乘”湾区生活工作圈。分钟即可达到深圳。(分钟到广州,分钟到香港,分钟到澳门、珠海)区域内八条轨道贯通,高铁(贵广高铁、南广高铁)+城际轨道(广佛肇城际、广佛环线)+地铁(佛山地铁号线、号线、号线,广州地铁号线)。项目离中心城区约分钟车程,分钟到金融高新区,分钟到物流园,分钟内有多个材料交易中心,配套完善的生活区。(一)标准双拼厂房:层户型的一个单元总面积约为−方,两单元打通共约−方。厂房结构:()首层高为.米,首层荷载T每平方,第二、三、四层高为.米,荷载.T每平方,第五层为.米,荷载.T每平方。()已经预留电梯井,可根据自身实际情况安装。(二)层总面积约—方。厂房结构:()首层高为.米,首层荷载T每平方,第二、三、四层高为.米,荷载.T每平方,第五层为.米,荷载.T每平方。()已经预留电梯井,可根据自身实际情况安装。(三)分层厂房:层总面积约—方,分层出售。厂房结构:()首层高为.米,首层荷载T每平方,二楼以上.米,二层荷载T每平方,三层以上荷载.T每平方。()配备两货两客电梯,T货梯,T客梯。

实物图片

广州荔湾 佛山西站高铁站旁5000㎡ 退台花园厂房出售 广州荔湾 佛山西站高铁站旁5000㎡ 退台花园厂房出售 广州荔湾 佛山西站高铁站旁5000㎡ 退台花园厂房出售 广州荔湾 佛山西站高铁站旁5000㎡ 退台花园厂房出售 广州荔湾 佛山西站高铁站旁5000㎡ 退台花园厂房出售 广州荔湾 佛山西站高铁站旁5000㎡ 退台花园厂房出售
推荐厂房