佛山
热门城市: 深圳 |  东莞 |  惠州 |  佛山 |  广州 |  中山 |  河源 | 
24小时咨询热线:13610446757

佛山顺德 4000㎡ 标准厂房 出售 层高8.1米 配电容量60千伏安 独门独院 带天车 带宿舍 有蒸汽 有燃气 可做环评

4000㎡
建筑面积

所在区域: 顺德 - 顺德

详细地址: 厂房特色:独门独院可办环评带燃气带蒸汽

基本信息

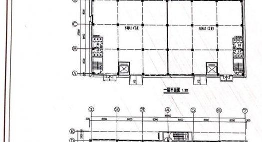
结构类型厂房厂房层数3层
厂房面积4000平米厂房高度8.1米
天车行吊1吨配电容量60KVA
厂房价格面议环评独院燃气蒸汽
厂房位置顺德佛山顺德杏坛,佛山一环南延线四乡出口厂房结构厂房
宿舍面积1平米厂房跨度8米
天车承重1吨厂房售价面议
厂房特色独门独院可办环评带燃气带蒸汽

详细介绍

、项目简介()中南高科·粤港澳智能创新小镇项目位于佛山市顺德区杏坛镇顺德高新区,紧邻佛山一环南延线出口、南至顺盈路、西至顺业西路、北侧紧邻城市快速路(杏坛二环),连接高赞大桥,可直达顺德主城区;距广州南站分钟车程,分钟连通广州白云机场,交通便捷,周边配套完善,小时直达珠三角生活及经济圈。()我们项目由江苏中南集团(股票代码:)旗下广东中南高科公司开发建设,规划用地面积约亩,规划总建筑面积万㎡,总*亿,目前在售地块面积是.亩,建筑面积万㎡,共栋套框架厂房。

实物图片

佛山顺德 4000㎡ 标准厂房 出售 层高8.1米 配电容量60千伏安 独门独院 带天车 带宿舍 有蒸汽 有燃气 可做环评 佛山顺德 4000㎡ 标准厂房 出售 层高8.1米 配电容量60千伏安 独门独院 带天车 带宿舍 有蒸汽 有燃气 可做环评 佛山顺德 4000㎡ 标准厂房 出售 层高8.1米 配电容量60千伏安 独门独院 带天车 带宿舍 有蒸汽 有燃气 可做环评 佛山顺德 4000㎡ 标准厂房 出售 层高8.1米 配电容量60千伏安 独门独院 带天车 带宿舍 有蒸汽 有燃气 可做环评
推荐厂房