佛山
热门城市: 深圳 |  东莞 |  惠州 |  佛山 |  广州 |  中山 |  河源 | 
24小时咨询热线:13610446757

佛山 顺德北滘镇三乐东路25号【北滘科创园500-3000方】 厂房租售层高8米 跨度20米 可环评 可分租

5000㎡
建筑面积

所在区域: 顺德 - 顺德

详细地址: 厂房特色:可办环评

基本信息

结构类型厂房厂房层数单层
厂房面积5000平米厂房高度8米
厂房租金面议厂房价格面议
环评独院燃气蒸汽分租厂房位置顺德顺德北滘镇三乐东路25号北滘科创园
厂房结构厂房单层面积2500平米
厂房跨度20米厂房柱距10米
货梯承重5吨地面承重2吨
厂房售价面议厂房特色可办环评

详细介绍

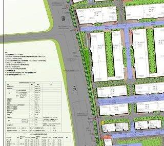
园区名称:顺德北滘集成科创园,项目地址:佛山市顺德区北滘镇主干道三乐东路项目体量:占地约万㎡(亩),建面约万㎡单层面积约㎡(单产权证面积㎡)产业方向:智能家研发、创意设计、智能制造、信息技术产业、高端装备制造产业、新材料产业、生物产业、新能源汽车产业、新能源产业、节能环保产业、数字创意产业及相关服务业电梯:每栋厂房配套台电梯(台T梯、台T梯、台.T梯)消防:丙类一级配套:员工宿舍、员工餐厅、门口公交始末站停车位:个

实物图片

佛山 顺德北滘镇三乐东路25号【北滘科创园500-3000方】 厂房租售层高8米 跨度20米 可环评 可分租 佛山 顺德北滘镇三乐东路25号【北滘科创园500-3000方】 厂房租售层高8米 跨度20米 可环评 可分租 佛山 顺德北滘镇三乐东路25号【北滘科创园500-3000方】 厂房租售层高8米 跨度20米 可环评 可分租 佛山 顺德北滘镇三乐东路25号【北滘科创园500-3000方】 厂房租售层高8米 跨度20米 可环评 可分租 佛山 顺德北滘镇三乐东路25号【北滘科创园500-3000方】 厂房租售层高8米 跨度20米 可环评 可分租 佛山 顺德北滘镇三乐东路25号【北滘科创园500-3000方】 厂房租售层高8米 跨度20米 可环评 可分租
佛山厂房出售推荐
推荐厂房