佛山
热门城市: 深圳 |  东莞 |  惠州 |  佛山 |  广州 |  中山 |  河源 | 
24小时咨询热线:13610446757

佛山顺德 6600㎡ 厂房租售层高7.9米 配电70KVA 独院天车3吨 有蒸汽 有燃气 可环评 可分租

6600㎡
建筑面积

所在区域: 顺德 - 顺德

详细地址: 厂房特色:独门独院可办环评带燃气带蒸汽

基本信息

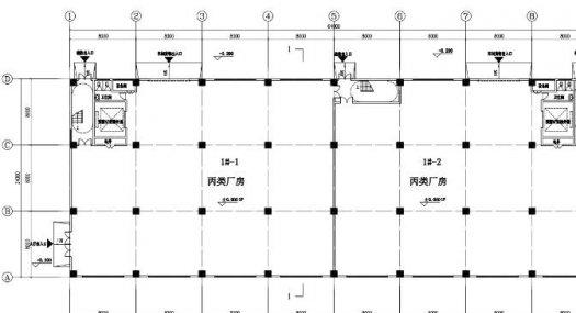
结构类型厂房厂房层数4层
厂房面积6600平米厂房高度7.9米
天车行吊3吨配电容量70KVA
厂房租金面议厂房价格面议
环评独院燃气蒸汽分租工业用地厂房位置顺德佛山智荟港产业园区
厂房结构厂房消防等级丁类
办公面积200平米空地面积1000平米
占地面积127亩厂房跨度9米
厂房柱距10米天车承重3吨
货梯承重5吨地面承重2吨
厂房售价面议厂房特色独门独院可办环评带燃气带蒸汽

详细介绍

[地理位置】佛山市顺德区勒流街道东风工业区港口路以西发展路号[土地性质】工业用地全新,产权分割,一户一证[商业配套】距离锦力新都汇KM,距离地铁号线(规划中)KM[类型】四层独栋双拼户型,米跨度,米*米柱距【交通】港口西路龙江大道【面积】面积分布:㎡㎡[层高】F.米,F米,FF.米【承重】F(无地下室,地面承重),FT㎡,F.T㎡,F.T㎡[物业】自有专业物业管理,园区配有餐厅,公共咖啡厅等公共服务设施[行业】:以电器,五金制造,智能制造,电子等产业{可定制】定制厂房可按照客户需求【交通优势】:项目位于佛山市顺德区勒流街道,地处正在顺德规划的勒流新城的核心区位

实物图片

佛山顺德 6600㎡ 厂房租售层高7.9米 配电70KVA 独院天车3吨 有蒸汽 有燃气 可环评 可分租 佛山顺德 6600㎡ 厂房租售层高7.9米 配电70KVA 独院天车3吨 有蒸汽 有燃气 可环评 可分租 佛山顺德 6600㎡ 厂房租售层高7.9米 配电70KVA 独院天车3吨 有蒸汽 有燃气 可环评 可分租 佛山顺德 6600㎡ 厂房租售层高7.9米 配电70KVA 独院天车3吨 有蒸汽 有燃气 可环评 可分租 佛山顺德 6600㎡ 厂房租售层高7.9米 配电70KVA 独院天车3吨 有蒸汽 有燃气 可环评 可分租 佛山顺德 6600㎡ 厂房租售层高7.9米 配电70KVA 独院天车3吨 有蒸汽 有燃气 可环评 可分租
推荐厂房